麻辣社区-四川第一网络社区

校外培训 高考 中考 择校 房产税 贸易战
阅读: 2991|评论: 1

[房产论坛] 城南三盘1537套房源拿证 高新第二摇均价1.5万

[复制链接]

发表于 2018-3-15 11:18 | 显示全部楼层 |阅读模式
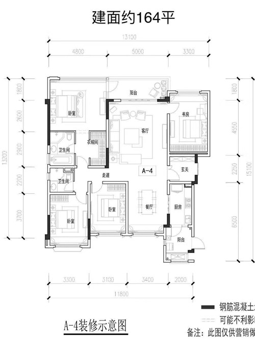
3月14日,成都房协官网发布最新预售项目公示,位于高新区的融创香璟台和位于双流区的葛洲坝紫郡蘭园、万科第五城获得预售许可,值得注意的是,融创香璟台是公证摇号选房政策实施后,高新南区入市的第二个项目。

41.png
融创香璟台
本次公证摇号开盘销售的全部准售房源包括香璟台东苑项目地块(一)3 号楼、地块(二)1、2、3、5 号楼,销售房源共259套,面积约39591.64 平米,提供26 套用于棚改户优先选房;香璟台西苑项目地块(一)2、4号楼,销售房源共141 套,面积约18299.14 平米,提供15套用于棚改户优先选房;香璟台西苑项目地块(二)1、8 号楼,地块(四)3 号楼,销售房源共88 套,面积约13530.8 平米,提供9 套用于棚改户优先选房。
均价:约15000元/㎡(**)
户型面积:约116—178㎡
网上登记时间:2018.03.15-2018.03.17(共3 天)(每天9:00-18:00)
资格核验时间:2018.03.16-2018.03. 20 (共5 天)(每天9:00-18:00)
总平及户型图:
42.jpg

43.jpg

45.jpg

46.jpg
47.jpg
48.jpg

49.jpg

50.jpg

51.jpg
52.jpg

53.jpg

54.jpg

55.jpg

56.jpg

57.jpg
58.jpg
葛洲坝紫郡蘭园
本次公证摇号开盘销售的全部准售房源共251 套,面积约30648.93 ㎡;其中1、2、7 号楼为叠拼产品,18 号楼为高层产品;叠拼产品分上中下三叠,可售房源合计54 套,面积约9320.04㎡;其中面积约187 ㎡五室三厅五卫下叠(一层跃二层)房源12 套,面积约191 ㎡五室三厅五卫下叠(一层跃二层)房源6 套;面积约162 ㎡五室两厅五卫中叠(三层跃四层)房源12 套,面积约166 ㎡五室两厅五卫中叠(三层跃四层)房源6 套;面积约162 ㎡五室两厅五卫上叠(五层跃六层)房源12 套,面积约166 ㎡五室两厅五卫上叠(五层跃六层)房源6 套;高层产品可售房源合计197 套,面积约21931.55 ㎡;其中面积约81 ㎡三室一厅两卫户型2 套、面积约92 ㎡三室两厅两卫户型66套、面积约101 ㎡三室两厅两卫户型63 套,面积约133 ㎡四室两厅两卫户型66 套。上述房源中提供26 套用于棚改货币化安置住户优先摇号、优先选房。
单价:约8500-10000元/㎡(清水)
网上登记时间:取得预售许可证第2-4 天(每天9:00-18:00)
资格核验时间:取得预售许可证后第3 天至核验完成

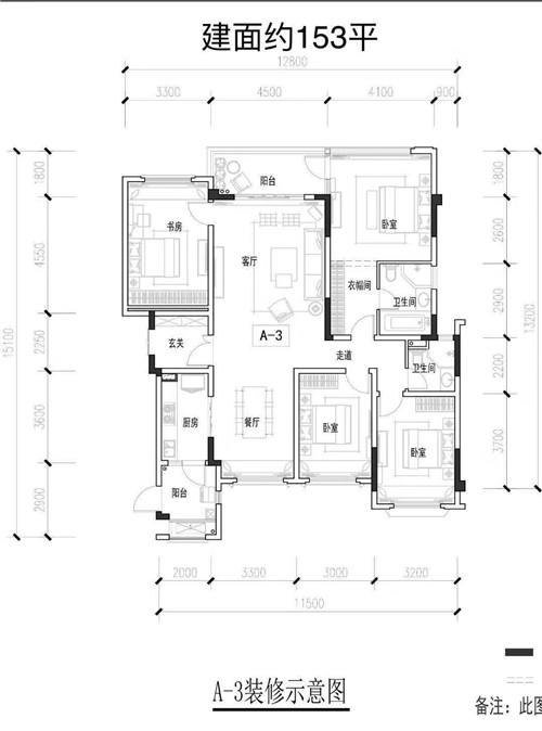
万科第五城
本次公证摇号开盘销售的全部准售房源共798 套,面积约79520.45 ㎡,其中约79 ㎡三室两厅单卫户型138 套,约84 ㎡三室两厅单卫户型36 套,约92 ㎡三室两厅双卫户型320 套,约98 ㎡三室两厅双卫户型34 套,约120 ㎡四室两厅双卫户型234 套,约134 ㎡四室两厅双卫户型36 套。上述房源中提供80 套用于棚改货币化安置住户优先摇号、优先选房。
均价:约11000元/㎡(**)
网上登记时间:取得预售许可证第2-4 天(每天9:00-18:00)
资格核验时间:取得预售许可证后第3 天至核验完成
总平及户型图:
59.png
60.jpg

61.jpg
62.jpg

44.jpg
打赏

微信扫一扫,转发朋友圈

已有 0 人转发至微信朋友圈

   本贴仅代表作者观点,与麻辣社区立场无关。
   麻辣社区平台所有图文、视频,未经授权禁止转载。
   本贴仅代表作者观点,与麻辣社区立场无关。  麻辣社区平台所有图文、视频,未经授权禁止转载。

发表于 2018-3-20 11:33 | 显示全部楼层
高级模式 自动排版
您需要登录后才可以回帖 登录 | 注册

本版积分规则

复制链接 微信分享 快速回复 返回顶部 返回列表 关闭