麻辣社区-四川第一网络社区

校外培训 高考 中考 择校 房产税 贸易战
阅读: 5384|评论: 1

[绵阳映像] 140㎡现代简约风三居室,9万半包搞定,清新明朗!

[复制链接]

发表于 2018-8-29 10:24 | 显示全部楼层 |阅读模式
积木家小编分享如何装修设计三口之家,能够突出温馨且不失时尚感,本案主要以简洁明快的设计风格为主调,全面考虑,在总体布局方面尽量满足三口之家生活上的需求。
0.jpg
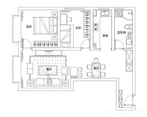
原始户型图
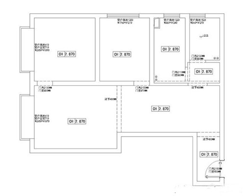
平面设计图,合理布局,在家具配置上,白亮光系列家具,独特的光泽使家具倍感时尚,具有舒适与美观并存的享受。在配饰上,延续了暖色为主色调,以简洁的造型、完美的细节,营造出时尚前卫的感觉。
1.jpg
平面设计图
面积:140㎡
户型:三居
风格:简约
设计:积木家装修
2.jpg
客厅给人一种豁然开朗的感觉,蓝色与白色的搭配,清透明亮,平和宁静。
3.jpg
木质地板为基底,配合无主灯的设计,营造自然温馨的氛围。
4.jpg
蓝色皮质沙发自带随性优雅的质感,黑色落地灯造型别致利落,线条感极强
5.jpg
无主灯的设计让空间更加开阔,吊顶两侧的灯带让空间环境更加柔和
6.jpg
没有浮夸的装饰,没有过于华丽的细节,整体干净清爽,简单而有品位
7.jpg
餐厅统一用木质打造餐边柜-门-玄关柜,一体化设计强调了整体性
8.jpg
大理石地面简约大气,再用一束花进行装点,气质满满
9.jpg
靠墙做了吧台设计并一直连接到储物柜,同样选择大理石纹路,不仅颜值高而且实用
10.jpg
书房设计实用性翻倍,既可作为读书区域又可充当临时客房,还带来了强大的收纳功能
11.jpg
简易的书房区域,由于搁板下方灯带设计的加入,而变得有趣起来。

打赏

微信扫一扫,转发朋友圈

已有 43 人转发至微信朋友圈

   本贴仅代表作者观点,与麻辣社区立场无关。
   麻辣社区平台所有图文、视频,未经授权禁止转载。
   本贴仅代表作者观点,与麻辣社区立场无关。  麻辣社区平台所有图文、视频,未经授权禁止转载。
 楼主| 发表于 2018-8-29 10:28 | 显示全部楼层

12.jpg

▲ 主卧软装以柔和的色调为主,整体宁静优雅,左侧梳妆台由柜子延伸出来,实用又好看。

13.jpg

▲卧室整体美满幸福

14.jpg   

▲ 床头背景墙以两幅画作装饰,并与右侧床头柜上娇嫩的花朵呼应,清新优雅兼具。

15.jpg

▲ 床尾一整面墙的衣柜,为避免视觉压抑做了部分留空,并设计灯带,营造了些许轻盈灵动感。

16.jpg

▲ 次卧风格沉稳安定,床头两侧储物柜开放+封闭式结合,收纳与展示功能兼备。

17.jpg

▲ 卫生间墙面与地面都选择了大理石纹路的瓷砖,高级灰的质感满满,沉于安静。

喜欢这样的装修吗?装修这样的房子花多少钱?搜索“积木家官网”,添加微信:jmj6605,或咨询客服热线4000300599,免费测试您家装修合不合理,价格透明,公正,公平,装修提前知,省时省力省钱!


高级模式 自动排版
您需要登录后才可以回帖 登录 | 注册

本版积分规则

复制链接 微信分享 快速回复 返回顶部 返回列表 关闭